Eiffelstraat

Hoofddorp

€3.000,- per maand

Reageer nu

Beschrijving

NEW NEW NEW – Stylish and High-Level Living in Hoofddorp
Upcoming Projects Near Schiphol, Amsterdam & Leiden! 🌍✈️

Exciting developments are underway in Hoofddorp! We are currently working on three brand-new residential projects, each of which will include a number of high-quality apartments managed by us.

Although the apartments are still under construction — and the interiors yet to be furnished — you can already express your interest now. Final delivery and setup are expected soon.

What to Expect:
Mostly 1-bedroom apartments of approximately 55 m²
A limited number of 2-bedroom apartments, some with balconies
High-end finishing and full furnishing, including kitchen appliances, furniture, lighting, and decor
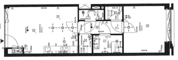
Architectural drawings are shown for now; no real photos available yet
💡 If you act early, there might still be an opportunity to share your preferences for furnishing and layout.
📍 Prime Location – Eiffelstraat 1, Hoofddorp
1-minute walk to Hoofddorp Station
5 minutes by train to Schiphol Airport
10 minutes to Amsterdam Zuidas (Financial District)
20 minutes to Amsterdam Central Station
Easy access to Leiden, Utrecht, and The Hague
🏡 Plug & Play Living
Approx. 55 m² to 65 m²
Fully furnished with stylish, modern interior
Underfloor heating, great insulation, energy-efficient
Open kitchen with full amenities
Spacious living area and delightful layout
South-facing balconies (where applicable)
Ideal for medium- to long-term stays (6 months minimum)
🧳 All-in Comfort & Services
Bed made on arrival and towels provided
Optional (bi-)weekly cleaning and linen service
Registration for 2 persons allowed
No financial paperwork required – 1 month deposit is enough
Just bring your suitcase!
💶 Rental Terms
1-bedroom apartments from €3,000/month
2-bedroom apartments at €4,000/month
Monthly utilities (gas, water, electricity, Wi-Fi): €250
Deposit: 1 month rent
Available from August 1, 2025
🎓 Ideal for Expats and Academics
These apartments are perfect for professionals working in or around Amsterdam, Schiphol, Utrecht, Leiden, and beyond. Central Amsterdam, while beautiful, is often unaffordable for similar quality. This is your chance to live in style — without compromise.

📐 Photos will follow soon — for now, we can offer detailed architectural renders.

Want to know more or reserve your unit?
📩 Contact us today and make Hoofddorp your new (temporary) home base.

Locatie

Vraag een bezichtiging aan