Curaçaostraat

Amsterdam

€2.350,- per maand

Reageer nu

Beschrijving

TE HUUR: CURACAOSTRAAT 45-1, AMSTERDAM

In de Curacaostraat, tussen het Vondel- en Rembrandtpark, is dit mooie gerenoveerde appartement (energielabel A) met authentieke elementen gelegen.

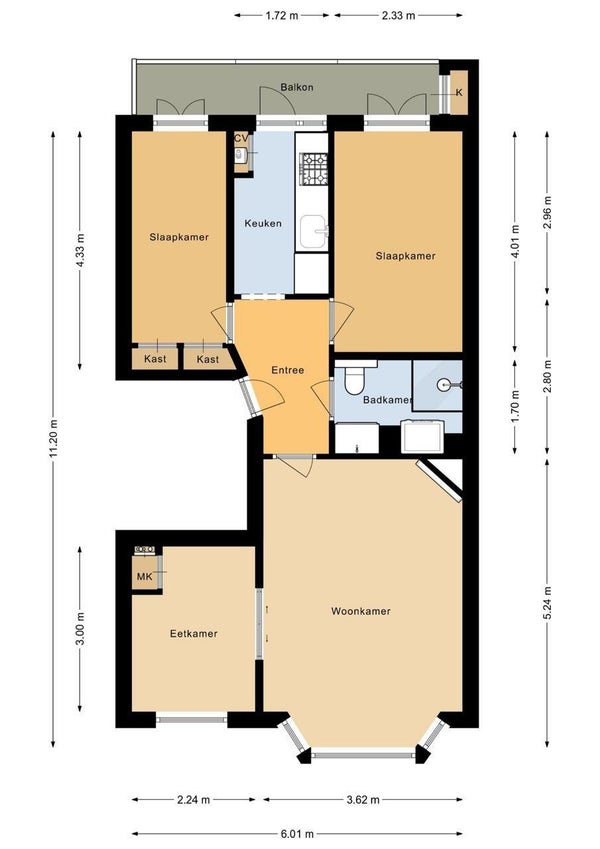
Het appartement bevindt zich op de eerste verdieping. Aan de voorzijde van het appartement bevinden zich de ruime lichte woonkamer en eetkamer. Deze eetkamer is ook als kantoor te gebruiken en middels en-suite deuren af te sluiten van de woonkamer. Aan de achterzijde van het appartement bevindt zich de keuken voorzien van alle benodigde inbouwapparatuur. Tevens bevinden zich aan de achterzijde van de woning beide slaapkamers welke middels openslaande deuren toegang geven tot het balkon. In het midden van de woning bevindt zich de badkamer met ruimte voor een wasmachine.

KENMERKEN:
- ca. 58 m2 (twee slaapkamers)
- ⁠Zonnig balkon over de gehele achterzijde van de woning
- Volledig gerenoveerd in 2017
- HR++ glas in gehele woning (met uitzondering van het glas in lood, daar voorzetramen)
- Energielabel A
- Gestoffeerd. Inclusief op maat gemaakte vouwgordijnen aan de voorzijde.
- PAX kast in de grote slaapkamer. Twee inbouwkasten in de kleine slaapkamer.
- Beschikbaar per 01-09-2025
- Mogelijkheid om een parkeervergunning aan te vragen
- Huurprijs EUR 2.350,- per maand excl. g/w/l
- Borg ter grootte van een betalingsverplichting van 2 maanden
- Woningdelen niet toegestaan
- Huisdieren in overleg

Locatie

Vraag een bezichtiging aan